Khu đô thị mới Lam Cường Xã Phú Xuyên Hà Nội là một tổ hợp nhà ở thấp tầng được quy hoạch tại xã Phú Xuyên, khu vực cửa ngõ phía Nam của Thủ đô
KHU ĐÔ THỊ MỚI LAM CƯỜNG – XÃ PHÚ XUYÊN – HÀ NỘI
- Tổng Quan Dự Án

Khu đô thị mới Lam Cường là một tổ hợp nhà ở thấp tầng được quy hoạch tại xã Phú Xuyên, khu vực cửa ngõ phía Nam của Thủ đô Hà Nội. Dự án hướng đến hình thành một không gian đô thị văn minh, đồng bộ, có hệ thống hạ tầng hoàn chỉnh, phục vụ nhu cầu an cư – giao thương của cư dân địa phương và vùng phụ cận.
Theo định hướng quy hoạch, Lam Cường là một khu đô thị quy mô vừa, có tính gắn kết cao với khu dân cư hiện hữu và trung tâm thị trấn Phú Xuyên, góp phần mở rộng không gian đô thị và đô thị hóa khu vực phía Nam Hà Nội.
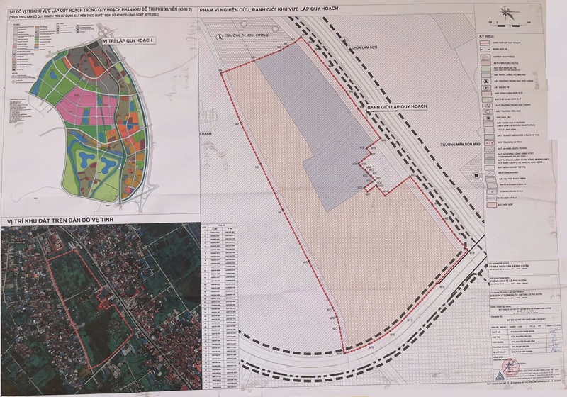
- Vị Trí Dự Án
Dự án nằm trên địa bàn xã Phú Xuyên – TP. Hà Nội, tiếp giáp với mạng lưới giao thông hiện hữu và gần các tuyến trục chính của khu vực. Xung quanh dự án là khu dân cư hiện hữu nên hạ tầng xã hội đã tương đối đầy đủ và dễ dàng kết nối.
Phạm vi ranh giới dự án gồm:
- Phía Bắc: giáp khu vực quy hoạch mở rộng trường học
- Phía Nam: giáp tuyến đường giao thông
- Phía Đông: giáp đường quy hoạch và dân cư hiện trạng
- Phía Tây: giáp khu dân cư hiện hữu
Vị trí này thuận lợi cho sinh hoạt, học tập, giao thương và đầu tư cho thuê trong tương lai.
- Quy Hoạch & Hạ Tầng
Tổng diện tích nghiên cứu quy hoạch của dự án vào khoảng 15,8 ha, được triển khai theo mô hình đô thị thấp tầng. Quy hoạch tập trung vào:
- Đường giao thông nội khu thiết kế theo dạng ô bàn cờ
- Tách bạch rõ giữa các tuyến đường chính và phụ
- Dải cây xanh và công viên nội khu
- Khu thương mại – dịch vụ bố trí tại các trục đường chính
- Hạ tầng kỹ thuật đồng bộ (cấp điện, cấp thoát nước, chiếu sáng, PCCC…)
Tổ chức không gian theo hướng hiện đại, tăng diện tích cây xanh, mặt nước để tạo môi trường sống thoáng và bền vững.
- Tiện Ích Dự Kiến
Mặc dù giai đoạn hiện tại chủ yếu là quy hoạch, tuy nhiên định hướng phát triển sẽ bao gồm:
- Công viên cây xanh
- Đường dạo bộ và quảng trường
- Khu vực hồ cảnh quan hoặc hồ điều hòa
- Khu shophouse – dịch vụ thương mại
- Khu nhà ở liền kề thấp tầng
Ngoài tiện ích nội khu, cư dân còn hưởng lợi từ tiện ích đã hiện hữu quanh trung tâm Phú Xuyên như:
✔ Trường học các cấp
✔ Chợ dân sinh, cửa hàng tiện ích
✔ Y tế cơ bản
✔ Khu hành chính xã – huyện
✔ Tuyến vận tải, bus liên huyện
Nhờ đó, nhu cầu sống thực được đảm bảo ngay khi dự án hình thành.
- Cơ Cấu Sản Phẩm

Dựa trên mặt bằng quy hoạch và tính chất sử dụng đất, dự án dự kiến triển khai các dòng sản phẩm sau:
- Shophouse / Nhà phố thương mại
- Bố trí dọc tuyến đường trục chính
- Phục vụ kinh doanh dịch vụ, cửa hàng, văn phòng nhỏ
- Phù hợp với nhu cầu kinh doanh địa phương và khách vãng lai
- Liền kề thấp tầng
- Nằm trong lõi nội khu
- Tổ chức theo dãy, đồng bộ kiến trúc
- Phù hợp nhu cầu an cư lâu dài
Các dòng sản phẩm biệt thự hoặc chung cư cao tầng chưa thấy định hướng xuất hiện trong giai đoạn quy hoạch hiện tại.
- Diện Tích & Quy Mô Sản Phẩm
- Tổng diện tích: ~15,8 ha
- Mật độ xây dựng: dự kiến ở mức trung bình do có công viên & mặt nước
- Diện tích từng lô, số lượng sản phẩm: sẽ được công bố sau khi có thiết kế chi tiết 1/500 được phê duyệt
Diện tích đất được phân bổ cho:
- Đất ở
- Đất thương mại dịch vụ
- Đất cây xanh – mặt nước
- Đất kỹ thuật – giao thông
- Giá Bán & Mặt Bằng Thị Trường
Tại thời điểm hiện tại, dự án chưa công bố giá bán do đang trong giai đoạn quy hoạch. Tuy nhiên, có thể dự đoán mặt bằng giá sau này sẽ chịu ảnh hưởng bởi:
- Hạ tầng khu vực (đường, cầu, kết nối về trung tâm)
- Uy tín chủ đầu tư
- Mô hình sản phẩm (shophouse thường cao hơn liền kề)
- Tiến độ hoàn thiện hạ tầng
- Sức cầu thực tế tại Phú Xuyên
Trong khu vực Phú Xuyên, đất dân cư hiện hữu đang giao dịch ở mức trung bình, do đó khi vào dự án quy hoạch đồng bộ, biên độ tăng giá sẽ cao hơn nhờ hạ tầng – pháp lý – tiện ích.
- Đánh Giá Tiềm Năng
Ưu điểm:
✔ Vị trí trung tâm xã – gần thị trấn
✔ Hạ tầng kết nối thuận lợi
✔ Quy hoạch đồng bộ, hiện đại
✔ Tiềm năng tăng giá theo đô thị hóa phía Nam Hà Nội
✔ Phù hợp nhu cầu an cư + kinh doanh dịch vụ
Thách thức:
Cần thời gian hoàn thiện pháp lý & hạ tầng
Tiện ích cấp vùng còn đang trong quá trình phát triển
Thông tin giá & chủ đầu tư chưa công bố
Khu đô thị mới Lam Cường là dự án đô thị thấp tầng có định hướng rõ ràng, phù hợp xu thế mở rộng đô thị phía Nam Hà Nội. Đây là sản phẩm tiềm năng cho nhóm:
- Nhà đầu tư đất nền – shophouse
- Khách hàng an cư tại Phú Xuyên
- Nhà đầu tư chờ biên độ tăng dài hạn
- Kinh doanh dịch vụ – thương mại địa phương
Liên hệ 0919875966
Website: https://greendragon.com.vn/khu-do-thi-moi-lam-cuong/
- “Đế chế” Newtechco Group của nữ doanh nhân Võ Thị Tuấn Anh
- Đà Nẵng Times Square: Tổ hợp căn hộ ven biển đẳng cấp tại trung tâm du lịch Đà Nẵng
- Những kiêng kỵ chú ý nên tránh khi chọn mua nhà
- Khai trương VinWonders Cửa Hội – Quần thể du lịch – giải trí lớn nhất Bắc Trung Bộ
- Masteri Lake Side Vinhomes Ocean Park 1 mở bán Căn hộ cao cấp – Sky Villas – Shophouse chân đế








