Căn hộ chung cư The Prime Starlake Tây Hồ Tây Khu đô thị Starlake, phường Phú Thượng, quận Tây Hồ, Hà Nội. Dự án do Tập đoàn Daewoo E&C (Hàn Quốc) phối hợp cùng Công ty TNHH Phát triển T.H.T làm chủ đầu tư
GIỚI THIỆU DỰ ÁN CHUNG CƯ STARLAKE THE PRIME TÂY HỒ TÂY – BIỂU TƯỢNG SỐNG ĐẲNG CẤP QUỐC TẾ GIỮA THỦ ĐÔ
Khu đô thị Starlake Tây Hồ Tây từ lâu đã được biết đến là “phên dậu vàng” của bất động sản Thủ đô – nơi hội tụ của các cơ quan hành chính trung ương, cộng đồng chuyên gia quốc tế, cùng những tuyến giao thông trọng yếu kết nối khắp Hà Nội. Giữa bức tranh quy hoạch đồng bộ và sang trọng ấy, Chung cư Starlake The Prime nổi lên như mảnh ghép trung tâm, biểu tượng của phong cách sống chuẩn quốc tế kết hợp tinh tế giữa công nghệ, cảnh quan xanh và hệ thống tiện ích cao cấp.

Với vị trí trái tim đại đô thị, The Prime Starlake không chỉ là nơi ở, mà còn là tuyên ngôn ngắn gọn của một lối sống thượng lưu: sang trọng, hoàn hảo, tiện nghi và hài hòa cùng thiên nhiên. Dành cho những ai coi nhà ở không phải nơi để trở về, mà là nơi để tận hưởng.
TỔNG QUAN DỰ ÁN STARLAKE THE PRIME

| Hạng mục | Thông tin chi tiết |
| Tên thương mại | Starlake The Prime |
| Vị trí | Khu đô thị Starlake Tây Hồ Tây, phường Xuân Tảo, quận Bắc Từ Liêm, Hà Nội |
| Chủ đầu tư | Tập đoàn Daewoo E&C (Hàn Quốc) |
| Đơn vị thiết kế | Heerim Architects & Planners (Hàn Quốc) |
| Loại hình | Căn hộ chung cư cao cấp |
| Số tòa | Dự kiến từ 4–6 tòa (tùy từng giai đoạn) |
| Chiều cao tòa nhà | 35–45 tầng |
| Số căn hộ | Khoảng 1.200–1.800 căn |
| Diện tích căn hộ | 45m² – 160m² (1PN – 4PN, Sky Villa, Duplex) |
| Bàn giao dự kiến | Hoàn thiện cao cấp (full nội thất Hàn Quốc) |
| Pháp lý | Sổ hồng lâu dài |
Điểm nhấn đặc biệt của Chung cư Starlake The Prime nằm ở chất lượng thi công chuẩn Hàn Quốc cùng hệ thống cảnh quan và tiện ích nội khu đồng bộ – điều mà các dự án khác trong khu vực khó có thể sánh kịp.

VỊ TRÍ CHIẾN LƯỢC – TÂM ĐIỂM KẾT NỐI

Starlake The Prime tọa lạc ngay trung tâm đại đô thị Starlake, nối thẳng:
- Hồ Tây – 5 phút di chuyển
- Khu Ngoại Giao Đoàn – 3 phút
- Lotte Mall Tây Hồ – 7 phút
- Trụ sở Bộ Công An, Bộ Kế hoạch và Đầu tư, Bộ Nội Vụ – liền kề
- Cầu Nhật Tân – Sân bay Nội Bài – 15–20 phút
Ngoài ra, The Prime còn nằm gần:
- Đại sứ quán Hàn Quốc, Hoa Kỳ, Trung Quốc (quy hoạch)
- Hệ thống các trường quốc tế danh tiếng:
- Trường Quốc tế Hàn Quốc
- Starlake International School
- Hệ thống giáo dục UNIS – SIS – Newton
- Các trung tâm thương mại cao cấp và công viên cây xanh rộng lớn
Nhờ đó, The Prime Starlake trở thành lựa chọn ưu tiên của:
- Chuyên gia nước ngoài làm việc tại Hà Nội
- Gia đình có con theo học hệ thống trường quốc tế
- Nhà đầu tư tìm kiếm giá trị bền vững và tăng trưởng cao
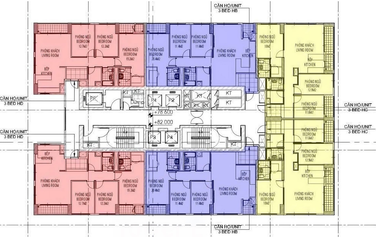
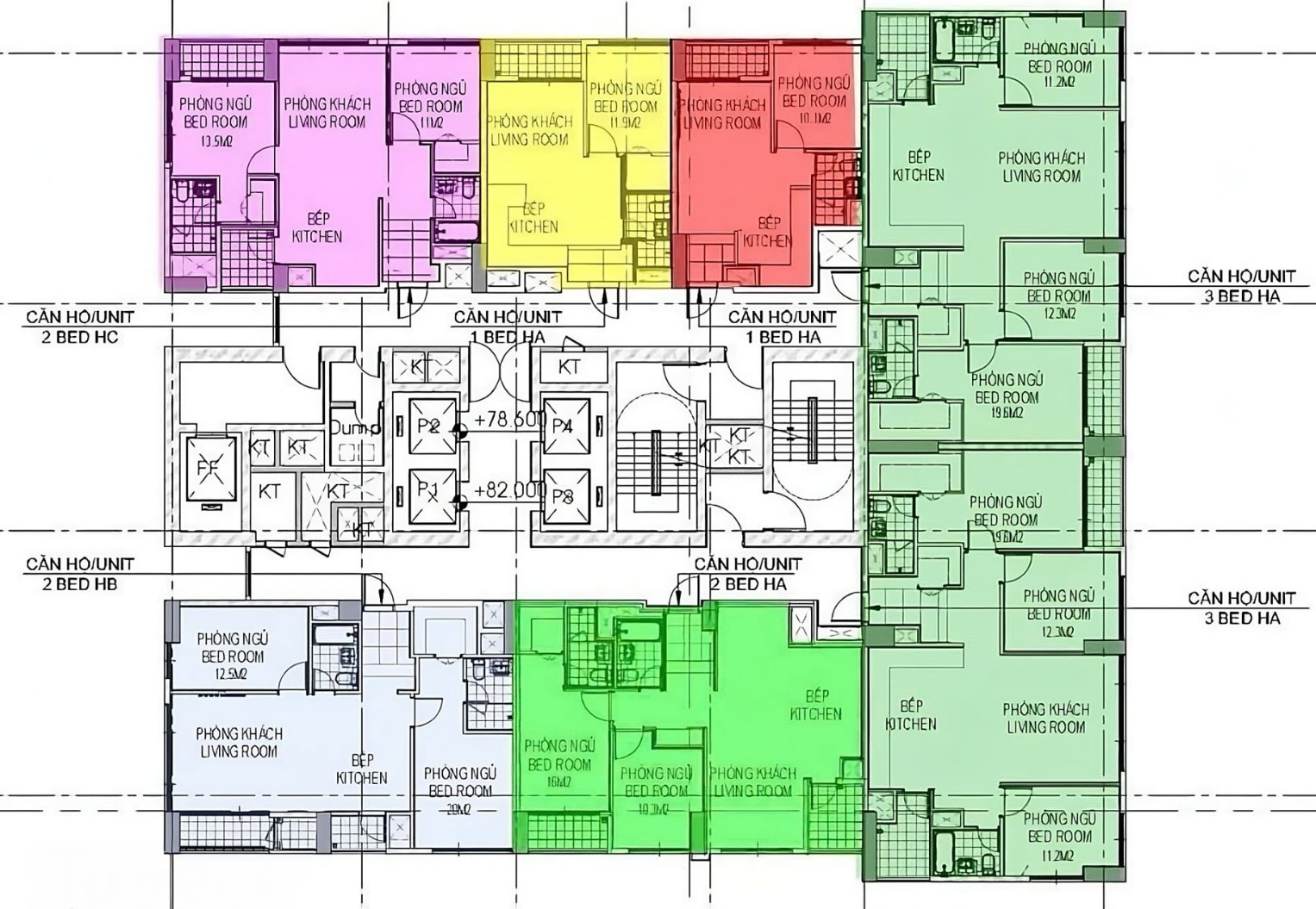
MẶT BẰNG VÀ THIẾT KẾ HIỆN ĐẠI


Thiết kế tinh tế phong cách Hàn Quốc

- Tối ưu diện tích từng m² sử dụng
- Không gian đón gió – lấy sáng tự nhiên
- Phòng khách rộng, bếp thoáng, logia khoa học
- View hồ, công viên và thành phố mở rộng 270 độ

Các loại diện tích tiêu biểu:
| Loại căn hộ | Diện tích (m²) | Đặc điểm nổi bật |
| Studio – 1PN | 45 – 60m² | Phù hợp chuyên gia ở một mình |
| 2PN | 75 – 95m² | Phổ biến, phù hợp gia đình trẻ |
| 3PN | 105 – 130m² | Không gian sống rộng, sang trọng |
| 4PN – Sky Villa | 140 – 160m²+ | View hồ, nội thất cao cấp, dành cho khách hàng VIP |
Thiết kế của Starlake The Prime tuân theo triết lý nghệ thuật tối giản Hàn Quốc: sang trọng, tiện nghi nhưng không phô trương.
HỆ THỐNG TIỆN ÍCH ĐẲNG CẤP CHUẨN QUỐC TẾ

Sống tại The Prime Starlake nghĩa là:
“Bước chân ra khỏi nhà là tiện ích, không cần đi xa để tận hưởng.”
Tiện ích nội khu gồm:

- Bể bơi 4 mùa trong nhà & bể bơi vô cực ngoài trời
- Khu Gym & Fitness chuyên nghiệp mô hình chuẩn Hàn
- Spa & Sauna chăm sóc sức khỏe
- Sân chơi trẻ em, phòng sinh hoạt cộng đồng
- Vườn đi bộ nội khu, quảng trường nước, lối dạo bộ ven hồ
- Khu BBQ & Lounge ngoài trời
- Sân thể thao đa năng
Tiện ích ngoại khu – Không thể so sánh

- Công viên Hòa Bình, Công viên hồ Tây
- TTTM Lotte Mall Tây Hồ
- Đường Nhật Tân – Nội Bài (lợi thế di chuyển)
- Hệ thống bệnh viện quốc tế tiêu chuẩn cao
Mọi nhu cầu từ giải trí, sức khỏe, giáo dục, công việc đều được đáp ứng ngay trong 5–15 phút di chuyển.
GIÁ BÁN VÀ TIỀM NĂNG TĂNG GIÁ
Hiện tại, giá dự kiến của Starlake The Prime đang ở mức rất cạnh tranh so với các dự án cùng phân khúc và cùng vị trí:
| Loại căn | Giá dự kiến (triệu/m²) | Tổng giá dự kiến |
| 1PN – 2PN | 78 – 95 | 4.2 – 6.8 tỷ |
| 3PN | 95 – 125 | 8.8 – 12.5 tỷ |
| 4PN – Sky Villa | Theo yêu cầu | Trên 15 tỷ |
Lý do The Prime chắc chắn tăng giá mạnh:
- Vị trí trung tâm quy hoạch Tây Hồ Tây
- Pháp lý rõ ràng, chủ đầu tư uy tín
- Khối lượng chuyên gia thuê ở khu vực rất cao
- Tương lai hình thành Trung tâm Hành chính Quốc gia Mới
Tỷ suất khai thác cho thuê dự kiến:
- 1PN – 2PN: 15–25 triệu/tháng
- 3PN: 28–45 triệu/tháng
- Sky Villa: Theo yêu cầu khách VIP
- VÌ SAO CHỌN SỐNG TẠI STARLAKE THE PRIME?
| Lợi thế | Ý nghĩa thực tế |
| Khu đô thị đẹp và đẳng cấp nhất Hà Nội | Môi trường văn minh, dân trí cao |
| Chủ đầu tư Hàn Quốc uy tín | Chất lượng xây dựng bền vững |
| Tiện ích hoàn hảo | Tận hưởng cuộc sống chuẩn resort mỗi ngày |
| Tập trung chuyên gia quốc tế | Cộng đồng văn minh, an toàn, riêng tư |
| Tiềm năng tăng giá mạnh | Tài sản đầu tư lâu dài bền vững |
Starlake The Prime không dành cho số đông. Dự án hướng tới nhóm khách hàng:
- Thành đạt
- Có gu thẩm mỹ tinh tế
- Trân trọng không gian sống chất lượng
- Tìm kiếm giá trị bền vững lâu dài
Chung cư Starlake The Prime không chỉ là một dự án bất động sản, mà là biểu tượng phong cách sống quốc tế ngay giữa Thủ đô: sang trọng, tinh tế, riêng tư và hoàn hảo đến từng chi tiết.
Đây là lựa chọn đáng đầu tư và đáng để sống cho hôm nay và nhiều năm sau.
Liên hệ bán hàng 0919875966
Webiste: https://greendragon.com.vn/the-prime-starlake/
- Đấu giá đất Ao Kho, thôn Bình An, xã Trung Giã, thành phố Hà Nội
- Bán 30 Lô Shophouse tại Vinhomes Smart City Tây Mỗ, Nam Từ Liêm
- Khu công nghiệp Hải Long nằm trên địa bàn xã Đông Tiền Hải, tỉnh Hưng Yên
- Hanoi Oriental Gia Lâm mở bán biệt thự liền kề
- Dự án đường ven biển Hải Phòng – Thái Bình được đầu tư gần 4.000 tỷ








